Villa met 4 slaapkamers en 4 badkamers in Moraira (Pinar del Advocat), Alicante
Luxe nieuwbouwwoning met uitzicht op zee in Moraira
Toplocatie vlakbij het strand en het stadscentrum
Deze luxe villa in Moraira is perfect gelegen op slechts 1,8 km van het strand en het bruisende stadscentrum en biedt een ideale balans tussen privacy en gemak. Moraira, een charmant kustplaatsje aan de Costa Blanca, staat bekend om zijn fijne zandstranden, kristalheldere water en mediterrane levensstijl. Het stadje biedt een ruime keuze aan restaurants, bars, supermarkten en een levendige jachthaven. De internationale luchthaven van Alicante ligt op ongeveer 90 km (1u15) via de snelweg A7, terwijl de luchthaven van Valencia op ongeveer dezelfde afstand naar het noorden ligt, waardoor de bereikbaarheid eenvoudig en comfortabel is.
Modern design met ruime interieurs
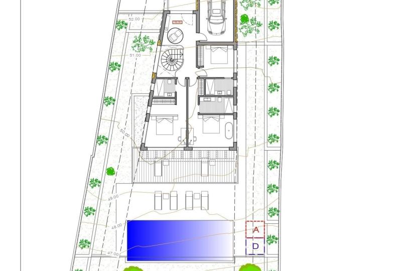
Deze villa is gebouwd op een royaal perceel van 912 m² en heeft een totale oppervlakte van 350 m² verdeeld over twee verdiepingen. De woning beschikt over 4 slaapkamers met en-suite badkamers en een gastentoilet, allemaal afgewerkt met hoogwaardige materialen.
De begane grond biedt een lichte open woon- en eetkamer die naadloos aansluit op een moderne keuken met kookeiland. Van hieruit geven grote schuifdeuren direct toegang tot het terras, de zomerkeuken en het privézwembad. Een slaapkamer met en-suite badkamer, een gastentoilet, een wasruimte en een multifunctionele ruimte maken deze verdieping compleet.
Elegante bovenverdieping met uitzicht op zee
Een designertrap leidt naar de bovenverdieping, waar zich drie extra slaapkamers met en-suite badkamers bevinden, evenals een ruime hal en een privéterras met spectaculair uitzicht op zee. De woning beschikt ook over een garage, een eigen parkeerplaats, vloerverwarming, airconditioning, dubbele beglazing en een versterkte veiligheidsdeur, wat zorgt voor maximaal comfort en gemoedsrust.
Mediterrane oase in de buitenlucht
De buitenkant is ontworpen als een privétoevluchtsoord, met aangelegde tuinen, overdekte en open terrassen, een privézwembad met buitendouche en een barbecueplaats die perfect is voor gezellige bijeenkomsten. De zuidoostelijke ligging garandeert de hele dag door veel natuurlijk licht, waardoor elke hoek van de villa licht en uitnodigend aanvoelt.
Levensstijl in Moraira
Moraira staat bekend om zijn ontspannen maar kosmopolitische sfeer. Gezinnen zullen genieten van het veilige zandstrand, terwijl natuurliefhebbers kunnen genieten van prachtige wandelingen langs de kust met uitzicht op de Peñón de Ifach in Calpe, op slechts 12 km afstand. Golfliefhebbers vinden ook uitstekende golfbanen binnen 10 tot 15 km.
Uw droomvilla wacht op u
Ervaar luxe wonen in Moraira met deze exclusieve villa. Neem vandaag nog contact met ons op om een bezichtiging te plannen en maak van dit mediterrane paradijs uw nieuwe thuis.
Slaapkamers: 4
Badkamers: 4
Woonoppervlakte: 350 m2
Plot: 913 m2
Details
| Aanbod Type | Te Koop |
| Status | Nieuwbouw |
| Slaapkamers | 4 |
| Badkamers | 4 |
| Woonoppervlakte | 350 m2 |
| Plot | 913 m2 |
| Energy | In process |
| Zwembad |
Most popular
|
PREMIUM
KEY READY
|
|
|
PREMIUM
|
|
PREMIUM
|
|
PREMIUM
|





