Villa met 3 slaapkamers en 2 badkamers in Daya Nueva (Pueblo), Alicante
Moderne halfvrijstaande villa's in Daya Nueva met een eigentijds ontwerp en uitstekende verbindingen
Rustig wonen in Daya Nueva
Deze nieuwe halfvrijstaande villa's liggen in het charmante stadje Daya Nueva in het zuiden van Alicante. Daya Nueva staat bekend om zijn rustige landelijke sfeer en biedt een comfortabele levensstijl, omgeven door boomgaarden en open landschappen, terwijl het slechts een klein eindje rijden is naar de bruisende kustgebieden van de Costa Blanca. Het stadje biedt alle essentiële voorzieningen, restaurants en lokale winkels, en ligt op slechts 10 km van de stranden van La Marina del Pinet en Guardamar del Segura. De internationale luchthaven van Alicante ligt op ongeveer 25 km afstand, waardoor het zeer goed bereikbaar is voor internationale huiseigenaren. Golfliefhebbers zullen het op prijs stellen dat La Marquesa Golf op 12 km afstand ligt en Vistabella Golf op 15 km.
Elegante architectuur en hoogwaardige bouw
Dit exclusieve project is ontworpen met veel aandacht voor detail en heeft een lichte, frisse en moderne architecturale stijl. De gebogen lijnen van de gevel zorgen voor een unieke, eigentijdse uitstraling, terwijl de hoogwaardige afwerking garant staat voor blijvend comfort.
Functionele indeling over twee verdiepingen
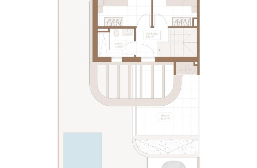
Elke villa is verdeeld over twee verdiepingen in de nieuwe woonwijk Daya Nueva, op loopafstand van het stadscentrum.
De begane grond omvat een woon- en eetkamer met een open keuken, directe toegang tot de tuin, een slaapkamer met ensuite badkamer en inloopkast, een gastentoilet en een eigen parkeerplaats op het perceel. Tegen meerprijs kan een privézwembad worden toegevoegd.
De bovenverdieping beschikt over nog twee slaapkamers, een complete badkamer en een open terras van 19 m2 met een mooi vrij uitzicht.
Comfort en moderne voorzieningen
De woningen zijn uitgerust met ingerichte badkamers, inclusief meubilair, spiegel en douchewanden. Extra voorzieningen zijn onder meer voorinstallatie voor airconditioning, ingerichte keukens, elektrische rolluiken in de slaapkamers, led-verlichting binnen en buiten en drie fotovoltaïsche zonnepanelen.
Ideale locatie voor wonen aan de kust en op het platteland
De villa's liggen in een rustige nieuwe woonwijk met gemakkelijke toegang tot de snelweg A 70. De stranden, golfbanen, jachthavens en nabijgelegen steden liggen allemaal op korte afstand, waardoor dit een ideale locatie is voor zowel vakanties als om het hele jaar door te wonen.
Neem vandaag nog contact met ons op om een bezichtiging te plannen en uw nieuwe huis in Daya Nueva te reserveren.
Slaapkamers: 3
Badkamers: 2
Woonoppervlakte: 109 m2
Plot: 195 m2
Details
| Aanbod Type | Te Koop |
| Status | Nieuwbouw |
| Slaapkamers | 3 |
| Badkamers | 2 |
| Woonoppervlakte | 109 m2 |
| Plot | 195 m2 |
| Zwembad |
Most popular
|
PREMIUM
KEY READY
|
|
|
PREMIUM
|
|
PREMIUM
|
|
PREMIUM
|





